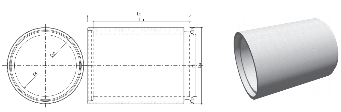
Tub din beton armat cu cep si buza Di 200 g 22 L 264.5 cm
Cod: 3400555
Producator: Elpreco
Pret/buc
Pret la cerere
TVA INCLUS
TVA INCLUS
Cantitate:
Minus
buc
Plus

Disponibilitate: La comanda
Detalii livrare Detalii livrare
Costurile si termenul de livrare sunt calculate in functie de produsele selectate, in pasul urmator
Recomandate pentru realizarea de retele de canalizare etanse pentru preluarea apelor uzate, meteorice prin curgere libera sau sub presiune redusa. Tuburile se armeaza cu carcasa sudata din otel pentru a asigura o rezistenta optima. Specificatii: • distanta maxima dintre barele longitudinale <350 mm; • pasul fretei: 70÷155 mm; • diametrul minim al barelor: 5 mm. Pentru tuburile cu Ø interior =1000 mm armarea este alcatuita din doua carcase concentrice. Armarea se poate realiza in functie de proiectul beneficiarului.
Loading
Loading
Loading
WhatsApp